
Культовая модель Lignum et Lapis от Arclinea
Изысканный мраморный кухонный остров, напоминающий современную скульптуру, занимает центральное место в пространстве, привлекая внимание своими нежными оттенками и геометрическим рисунком. Задняя стена, также отделанная мрамором, и тщательно продуманное освещение усиливают драматический эффект этого монолита, превращая его в ключевой элемент всей планировки.
Lignum et Lapis, созданная Антонио Читтерио, является воплощением чистоты и утонченности. Дизайн этой модели сосредоточен на гармоничном сочетании процесса приготовления пищи и искусства хозяйствования, что делает её идеальным решением для современного дома. Интеграция функциональности и эстетики позволяет создать пространство, где кухня становится не только местом для готовки, но и центром общения и вдохновения.

Кухонный остров Arclinea полностью воплощает концепцию выставочной кухни, придавая ей изящную скульптурную форму и подчеркивая уникальный итальянский стиль компании.
Кухонный остров LAPIS от Arclinea
Этот стильный и функциональный кухонный остров от Arclinea разработан для комфортного приема гостей с одной стороны и удобного приготовления пищи с другой. Рабочая поверхность оборудована всем необходимым: кухонными принадлежностями, раковиной и подвесными подставками. Длинное стальное основание, простирающееся вдоль задней стенки, предоставляет дополнительное рабочее пространство и поддерживает зону мойки, что значительно повышает производительность.
Две стены, идеально сочетающиеся с дизайном кухни, тянутся вдоль длинных сторон помещения. Они выполнены в стиле буазери с характерными вертикальными планками модели. В этих стенах встроены бытовые приборы, блоки для хранения и двери, соединяющие кухню с другими рабочими зонами и комнатами дома, обеспечивая максимальную функциональность и эстетическую гармонию.
Преимущества мраморного кухонного острова Lapis Arclinea:
- Эстетика и элегантность: Мраморный остров служит не только функциональной поверхностью, но и декоративным элементом, добавляя изысканности в интерьер.
- Функциональность: Продуманное расположение и конструкция острова делают процесс приготовления пищи максимально удобным и комфортным.
- Качество материалов: Использование высококачественного мрамора гарантирует долговечность и лёгкость в уходе, сохраняя первозданный вид на протяжении долгих лет.
Купить итальянскую кухню Arclinea в Москве — значит выбрать уникальный дизайн и высочайшую функциональность.

Двойная центральная дверь, встроенная в стену, обеспечивает удобный доступ в обеденную зону, а две симметрично расположенные двойные стеклянные двери Stopsol с матовой бронзово-алюминиевой отделкой подчёркивают изящество интерьера.
Изысканные и тонкие сочетания материалов создают атмосферу элегантности и гармонии, охватывая всё пространство. Динамичная текстура решетчатых стен из натурального дуба NTF контрастирует с полированным серым мрамором Versilys, используемым для отделки острова и задней стенки, а также с утончённой текстурой винтажной нержавеющей стали оснований. Остров полностью воплощает концепцию выставочной кухни, придавая ей скульптурную форму и подчёркивая уникальный итальянский стиль Arclinea.

Разные комнаты дома, объединённые встроенными в стены дверями, создают плавный и гармоничный визуальный и функциональный переход между ними.

За островом располагается неожиданная кладовая, оснащённая всеми необходимыми решениями и инструментами для хранения различных ингредиентов, а также оборудованием для охлаждения и приготовления пищи. Это завершает проект, обеспечивая оптимальные условия для готовки и общения с гостями. Гармонично расположенные кладовая, кухня и столовая плавно переходят друг в друга, создавая открытую и удобную зону, идеальную для кулинарных шоу и совместных ужинов.


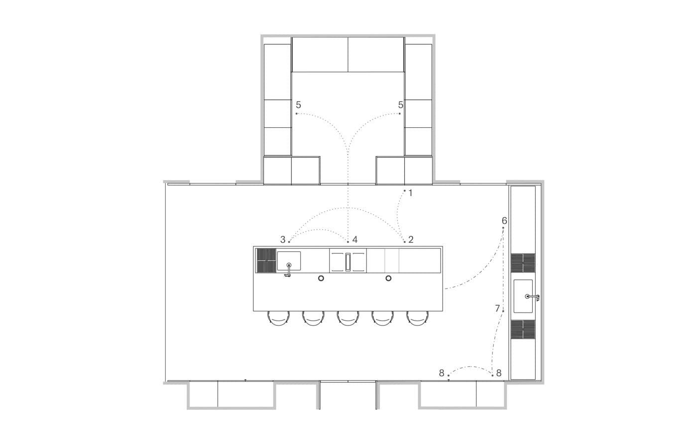
–.–.–. Цикл мойки
……… Цикл приготовления пищи
Итальянские кухни премиум-класса в Москве
Компания Arclinea приглашает вас оценить коллекцию дверей Lignum et Lapis, которая объединяет традиции итальянского мастерства и инновации в дизайне кухонь. Приглашаем вас посетить наш новый салон в Москве, чтобы лично увидеть и ощутить все преимущества нашей продукции.
Оформите заявку на расчет или посетите наш салон
Готовы сделать первый шаг к созданию кухни вашей мечты? Оставьте заявку на расчет прямо сейчас и закажите итальянскую кухню от Arclinea, разработанную специально для вас. Наши специалисты свяжутся с вами, чтобы обсудить все детали и предложить оптимальное решение, полностью соответствующее вашим ожиданиям. Или посетите наш новый салон в Москве, чтобы лично ознакомиться с коллекцией Lignum et Lapis и получить профессиональную консультацию.
Не упустите шанс заказать итальянскую кухню по индивидуальному проекту и насладиться истинным итальянским качеством и инновационным дизайном премиум-класса от Arclinea. Мы с радостью ждем вас!
ЭКСКЛЮЗИВНЫЕ ЭЛЕМЕНТЫ ARCLINEA


Узнать больше

Узнать больше
ОТКРОЙТЕ ДЛЯ СЕБЯ ВСЕ ЭКСКЛЮЗИВНЫЕ ЭЛЕМЕНТЫ ARCLINEA >
ДВЕРНЫЕ СТОЙКИ
Дверца с эксклюзивным дизайном, с регулируемой шириной и расстоянием между стойками, доступна с новой карманной ручкой.


ОТКРОЙТЕ ДЛЯ СЕБЯ ВСЕ ВИДЫ ОТДЕЛКИ ARCLINEA >
ЗАГРУЗКИ И ТЕХНИЧЕСКИЕ МАТЕРИАЛЫ
КАТАЛОГ
ОТДЕЛКА
Двери из дерева и мрамора (скачать)



