
ITALIA ОСТРОВ
Модель Italia
Представленная в 1988 году, модель Italia ознаменовала начало сотрудничества с известным дизайнером Антонио Читтерио, который позже стал арт-директором и главным дизайнером всей коллекции Arclinea. С момента своего дебюта Italia воплощала эстетику и технические решения, типичные для профессиональных кухонь, и привносила их в домашние интерьеры задолго до того, как это стало популярной тенденцией.

ITALIA, СИСТЕМА MODUS DOORS
Центральное место в интерьере занимает итальянская островная кухня из нержавеющей стали с интегрированным снэк-баром Era, которая объединяет в себе компактность и функциональность, при этом идеально подходя для общения и взаимодействия с гостиной зоной. Деревянные панели из американского черного ореха со встроенными горизонтальными откидными дверцами Modus скрывают полностью оборудованную рабочую зону с профессиональными инструментами и бытовой техникой.

Разделение кухни на отдельные зоны позволяет наслаждаться домом по-разному, но всегда взаимодополняющими способами. Каждая зона создаёт своё уникальное пространство, будь то для приготовления пищи, общения или отдыха, обеспечивая гармонию и функциональность в вашем доме.

Горизонтальные складные дверцы Modus System со встроенной ручкой из нержавеющей стали, расположенные в середине деревянных панелей, открываются, открывая полностью функционирующую кухню. Центральная зона оснащена столешницей толщиной 12 см, дверцами Italia со встроенной ручкой, задней панелью с вытяжкой и полкой Mensolinea. В комплекте — светодиодная подсветка с профилем мощностью 3000K, а также раздвижные аксессуары из американского черного ореха и керамики.






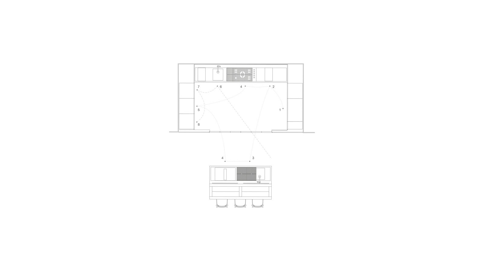
–.–.–. Цикл стирки
……… Цикл приготовления пищи
ЭКСКЛЮЗИВНЫЕ ЭЛЕМЕНТЫ ARCLINEA


Узнать больше

Узнать больше

Узнать больше

Узнать больше
ОТКРОЙТЕ ДЛЯ СЕБЯ ВСЕ ЭКСКЛЮЗИВНЫЕ ЭЛЕМЕНТЫ ARCLINEA >
Дверцы Italia
Со встроенной ручкой Italia, эксклюзивный патент Arclinea, доступна в никелированном перламутровом или темно-серебристом исполнении.






ОТКРОЙТЕ ДЛЯ СЕБЯ ВСЕ ВИДЫ ОТДЕЛКИ ARCLINEA >
ЗАГРУЗКИ И ТЕХНИЧЕСКИЕ МАТЕРИАЛЫ
КАТАЛОГ
ОТДЕЛКА
ОТКРОЙТЕ ДЛЯ СЕБЯ ДРУГИЕ МОДЕЛИ

Узнать больше

Узнать больше

Узнать больше

Узнать больше